Interior Design: From 50-year-old House to Beautiful Tropical Villa

This interior design article shares with you this incredible makeover of a 50-year old single storey corner house. Once a rundown relic of the past, it has now been transformed into a modern villa that epitomizes the elegance and comfort of tropical living with its own private swimming pool.
Ever had that thought of buying an old property in the neighbourhood and transforming it into your dream home? The house was in dire need of refurbishment and drastic interior design to be liveable again. Being a corner terrace house, it had a generous stretch of land on the site.
But the garden left unattended had blossomed into the wild. The walls were worn, the roof had seen better days and the overall structure seemed to groan under the weight of time. But where others saw decay, Kenneth Tan, the humble owner of the property saw potential. With some imagination and effective interior design, this could be something.
The journey began with stripping down the old and making way for the new. Walls were knocked down, new foundations were laid and a fresh vision was brought to life. The goal was to merge the charm of the past with the conveniences of modern living crafted to suit Kenneth’s daily lifestyle with its interior design.
Kenneth named his house the ‘Respite House’ because it is a sanctuary for him to come back and relax from his busy career in the F&B industry. An escape from the hustle and bustle of the city. After asking himself how much space he actually needs, Kenneth realised that he only needed a mid-sized condominium unit or apartment between 1000 sq ft to not more than 2000 sq ft of interior space.
Narrowing his choices to basically this single storey terrace. For him, it was important to have enough indoor space, not too much of it, but also quality indoor space. He focused on curating quality indoor spaces adjacent to features he would enjoy. Like a swimming pool. Even though he didn’t really enjoy swimming, Kenneth enjoyed waking up to the sight of water, the reflection of water on the ceilings and the calming sounds of water.
In the design of the front porch, the gate was enlarged. A vent block wall was also installed, giving more privacy to the home. Passers by in front of the house are not able to peer into the main door directly. Also, it creates a foyer space for shoes and added storage. This intermediate space makes the whole entry experience a lot more pleasant.
The living area once gloomy and dated is now a spacious, inviting sanctuary. Modern finishes, elegant fixtures and a soothing color palette in its interior design gives the fresh home a contemporary feel. The layout was thoughtfully crafted with the rooms and bathrooms gracefully aligned on the left while the right side facing the pool, featured an open floor plan that opens up directly to the pool area.
The overall kitchen space has been shrunk compared to the original layout where the kitchen occupied the whole back of the house. Kenneth opted for a small pantry area rather than an open kitchen with the option of hiding all the electrical appliances. In front, a small peninsula houses the bar counter. A coffee machine on the bar is where Kenneth starts every morning.
The biggest change to the layout is how the dining and living shares one singular space, the typical format for a condominium unit. To Kenneth, it is the most space efficient design. This interior design layout allows him to see everyone in the room when he entertains, improving the interaction with guests.
The house is also furnished with motorised curtains from Curtain Library, improving overall convenience for Kenneth. Although it is not a big house, it is equipped with a range of appliances, gadgets and even a motor to operate the pool. This makes it challenging to cut down on electricity usage. But this is where Kenneth was ahead of the curve, installing a solar system for his house.
This episode is proudly sponsored by Solaroo, your one stop solution for solar PV systems in Malaysia. They help you manage and prioritise energy costs through the use of strategic energy management. Click here to find out more.
Did you know that installing solar panels even on a smaller home like this can lead to significant savings? It’s not just about benefiting from electricity rebates. Installing solar panels on the roof also helps reduce heat gain, making the house cooler naturally. It’s a win-win situation for your wallet and the environment.
To Kenneth, it was something he thought about from the beginning other than the home’s interior design. The current panels for his house actually power almost the entire house, covering probably 90% of the electricity bill for most months on average.
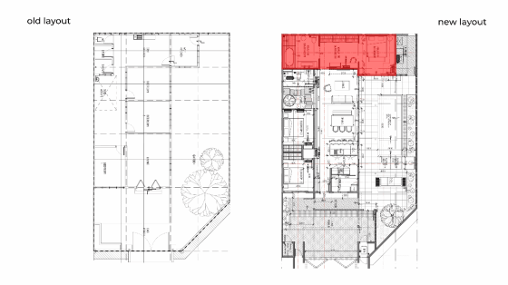
Like most conventional terrace houses, at the rear of the property, it was initially the kitchen. But Kenneth’s idea was to have this master suite relocated to the far back of the property. The master suite spans across the entire width of the property, comfortably fitting a large bathroom with a bathtub, a huge wardrobe area and a fascinating bedroom that faces the swimming pool.
In the initial floor plan, the master bedroom was facing the front porch of the house before being relocated to the back of the house. This is because Kenneth likes the space planning of a condominium layout where the kitchen is typically at the front. Adjacent to it will usually be the dining room. Then the living room and bedrooms are situated at the further end of the property.
The rooms that were facing the outside were also flipped and now the two guest rooms are actually on the inner side of the property. Fulfilling Kenneth’s goal of an open plan living, this clever interior design move doesn’t just benefit the master room in terms of the size but also moves the bedroom further away from the dust and noise from the streets.
Speaking of dust, many would be curious. How do you maintain cleanliness if your property is close to the roads? In this project, Kenneth uses the Dreame L20 Ultra Robot vacuum. The L20 Ultra is a powerful vacuum that is also sleek and stylish to blend in with your interior spaces. With its powerful suction and intelligent navigation, cleaning becomes a breeze, leaving more time for moments that matter. Get a deeper clean throughout your home with Dreame exclusive AI-driven mop extend technology and impressive DuoScrub mopping system. Get your own here today!
One of the most exciting interior design additions is the new swimming pool. Positioned at the side of the house, this oasis offers a perfect spot for relaxation and entertainment. Surrounded by a beautifully landscaped garden, it’s an inviting escape from the hustle and bustle of daily life.
Summary
From the ground up, every interior design detail was meticulously planned and executed. The old, dark interiors were replaced with open and airy spaces. Large windows were installed to flood the home with natural light creating a seamless connection between the indoor and outdoor living.
For more beautiful terrace house transformations, check out this stunning house renovation of an urban garden house by Oscar Tan of OTCQ Architect.
We hope this story inspires you to see the hidden potential in every space. Remember, with a bit of creativity and determination, any house can become a dream home. Visit our YouTube channel for more amazing terrace house transformations!
Thank you for taking the time to read this Article. Stay tuned for more updates!








